|
前言: ​近年来智能家居越来越普及,不但价格已经变的可以接受,同时使用也更加的便利,本文就结合我自己家里的实际情况,使用小米相关产品用尽量少的成本搭建了最基础的灯光智能,实现了家中灯光的智能化以及简单预警的智能化,接下来就来我就说说我是如何设计的以及自己安装插座中容易遇到的问题。 
和普通介绍小米智能开关的文章不同,因为很多人是后期自己安装,所以我专门讲了双控开关如何改为小米开关,三开开关如何改成小米开关等后期自己安装面临的问题,和小米智能开关灵活使用的几个实用小技巧。 
一图搞定各种开关接线方式,后边干货多多,求收藏哈哈! 下一篇文章会继续写如何结合小米门锁、音响、电动窗帘以及万能遥控器等实现更复杂的联动,喜欢的可以先收藏绝对满满的干货。 壹、清单:
这次用不到1800实现了全屋灯光智能化和简单的屋内预警。 因为家中的窗帘没有留插座,而且空调是中央空调,所以这次的家居智能化我主要就是集中在灯光和监控方面,如果是新家装修可以把窗帘和空调也考虑进去。其他的类似于扫地机器人、音响、新风、空气净化器、电饭煲之类的都可以后期慢慢等好价不需要一次性买齐。 网关种类:网关是构建智能家居的一个基础构建,所以想要使用小米的智能家居首先需要购买网关,目前我总结下来有四种可以做网关的设备。 1、小米多功能网关:139元
这是最基础的小米网关,主要的功能除了可以做基础的网关以外,还可以当做小夜灯来使用,同时价格也是几个网关中最实惠的。 2、米家空调伴侣/Aqara空调伴侣:149元/199元
家里如果有空调的可以直接买这两款,这两款除了有基础的网关功能以外还可以当做空调智能插座来使用,两款一个米家的一个绿米的区别,就是米家只能连接米家App,绿米还可以连接homekit,根据需要购买即可。 注意两点,一是这两款网关都必须插在16A的插座上边,二是虽然是空调伴侣但是中央空调和风管机是无法控制的,求这两种控制办法。(我知道有贵的办法求平价的) 3、Aqara网关:299元
绿米的网关,目前来说我比较了半天好像就是多了可以使用Apple App来控制以及可以Siri语音控制以外,和小米的普通网关没什么太大区别,所以不是很推荐。 4、智能摄像头G2(网关版)
目前我家就是用的这款来当网关,因为我需要天天出差所以门口想装一个摄像头,最后就选了这款除了摄像头的功能外还可以当做网关使用,性价比还是比较高的,可以从这张图看出这款摄像头有几个优点。 
1、可以当网关使用,这是我最看重的一点,我目前把家中的智能设备都关联到这个摄像头了,可以在看监控画面的同时,操作下方的开关警戒。 2、镜头是广角镜头,方便全方位观察需要观察的区域,视角更加的大,监控摄像头如果连广角镜头都没有,那么就会出现很多死角。 贰、灯光智能化:一、小米开关简介:首先要知道小米的开关分为六种:单火单键、单火双键、零火单键、零火双键、无线单键、无线双键,双键和单键不用解释就是控制一个灯还是两个灯,注意小米只有单键和双键,再多的灯就需要加开关或者两个开关并做一个了。 1、单火版:179元/199元 
1、装修好后的家庭的首选,因为一般如果没有提前设计家中的开关都不会预留零线,所以已装修家庭如果想要使用小米智能开关,那么就推荐单火版,个人就是使用的单火线版。 2、零火版:139元/159元 
1、大多数功能和单火版一致,需要零线价格上能便宜一点点。 2、单火版是过流保护,而零火版是过温过载保护,不过控制灯这点必要性不大。 3、多了一个功率监测的功能,可以在控制插座时监控插座的总用电量。 3、无线版:89元/99元 
1、配合零火版或者单火版使用,绿米的开关实现双控和普通开关需要留线不同,而是通过无线版开关来实现的,外表和普通开关完全一模一样,下图两个开关一个是无线的一个是单火的你能区分出来么?哈哈 2、有单击、双击和长按三种模式,我一般把单击设计为正常开关灯,然后所有的长按都设定为关闭全屋灯光。 二、小米遥控开关:小米的遥控开关个人买了两个一个是遥控开关另一个是魔方控制器,说白了这两个东西实际相当于用样子不同的无线版开关。 1、遥控开关:79元 
遥控开关是一个四四方方的小东西,中间有个圆点整体设计比较简洁,一共有四种控制方式分别为单击、双击、长按和摇一摇。这款设备不但可以控制灯光还可以通过智能插座控制家中电器、空调等,并且可以单独当门铃使用。(不过不推荐当门铃因为很可能被偷吧。) 2、魔方控制器:79元 
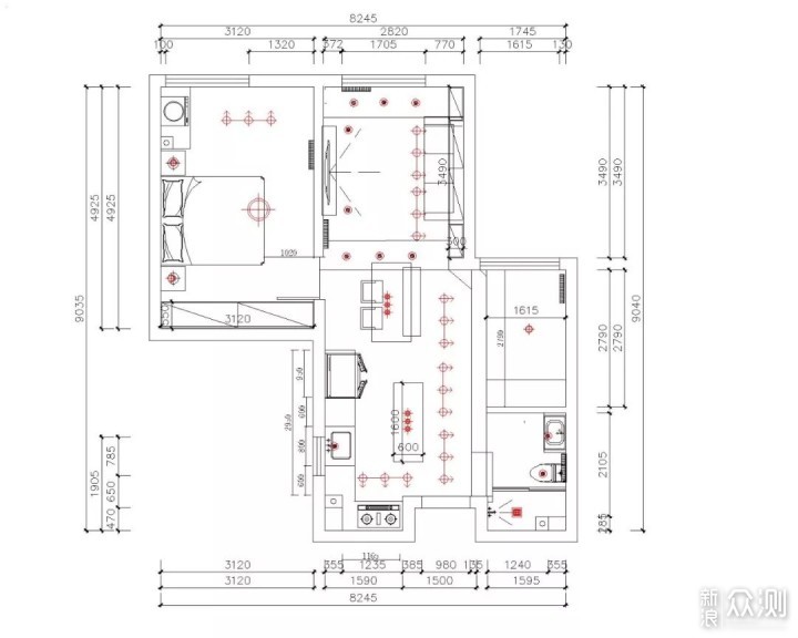
这款小东西四四方方,外形和名字一个样就是一个小魔方的样子。一共有六种模式可玩性比较高,分别是推一推、摇一摇、转一转、敲一敲、翻转180度、翻转90度。 三、家中开关布置:我家里因为面积也不是特别的大,除了两个床头灯是直接在床头控制没换小米外其他的都换了小米的开关。 
1、厨房、走廊灯光: 
厨房灯光和走廊书架灯光,由进门处安排一个单火双键分别控制两组灯光,同时搭配一个双键无线开关放在走廊尽头使用,同时后期打算联动门锁,实现夜间进门时开灯的设定。 
同时两个遥控开关和次卧无线开关也可以通过关闭全屋灯光的指令来实现关闭这两个灯,所以这两个灯光除了在进门以及走廊尽头的沙发旁可以实现开关外,在家中所有地方都可以实现关闭功能。 
洗手间灯光开关也同时设计在进门处,因为洗手间就在进门的右手边,同时在走廊尽头也就是沙发旁设计了一个无线开关可以控制洗手间灯光的开关,并且两个遥控开关也都为洗手间灯光单独设计了指令,方便控制。 
最后在洗手间进门处设计一个人体传感器,设置为检测到有人移动就开灯,白天6:00-23:00,半小时无人移动自动关灯(防止洗澡时灯光关闭),晚上23:00-第二天6:00,10分钟无人移动后自动熄灯。(这样可以防止迷迷糊糊忘记关灯) 注:人体感应器的感应部分是那个反光部分,所以可以通过调整反光位置的角度实现感应的范围。 3、餐桌灯光: 
餐桌旁布置一个单火双键开关,分别控制餐桌和次卧的灯光,因为餐厅就在全屋的必经之路,即使不亮灯也不影响照明,主要氛围使用所以就没有多布置开关,但是可以通过两个遥控开关实现关闭灯光。 4、客厅灯光: 
沙发边利用单火双键开关用来控制客厅的四组灯光,两边的灯光归属于一个开关,前后的灯光归属于一个开关,因为小米只有双键开关,所以只能这样折中了,毕竟一个开关小200了,而且我已开始就只设计了一个开关的位置。这个开关也比较简单,就是仅仅联动了两个遥控开关。 
5、主卧、阳台灯光: 
主卧门口设计一个单火双键开关,分别控制主卧灯光和阳台的灯光。两个床头灯的开关就没有接入智能开关系统了,而是直接由床头灯开关控制。 
同时主卧的主灯还可以通过床头的遥控开关单击控制开关,实现了双控的功能。 6、次卧灯光: 
次卧的灯光开关和餐厅的灯光开关设计在了一起,因为次卧直接是榻榻米所以进门处就在走廊的尽头,同时这个地方还布置了控制洗手间、厨房、走廊的无线开关,因为这是全屋动线的中心点。 
同时在次卧的床头设计了一个无线开关,实现了双控次卧灯光,以前的次卧开关为了美观没有拆除,但是已经无法使用了。 全屋的墙壁开关一共有八个,分别为四个单火双键,一个单火单键,一个无线双键,一个无线单键。 7、遥控开关:放置在卧室 

单击:控制卧室灯光(动图大小限制可能看不清) 双击:控制新风 
长按:关闭全屋的灯光 摇一摇:控制餐厅灯光(因为我们家餐厅灯比较柔和又在必经之路所以可以作为夜灯使用) 8、魔方控制器:放置在客厅 

推一推:控制客厅前后灯 
摇一摇:控制客厅左右灯 转一转:控制餐厅走廊灯光 
敲一敲:关闭全屋灯光 翻转90度:控制洗手间灯光 翻转180度:目前没设置,想以后装了智能窗帘后控制窗帘 四、安装开关注意:1、单火单键安装 
这种开关的安装比较简单,一共就两根线,一根火线一根地线,L孔接火线,L1孔接灯线。 2、单火双键安装 
这种难度也不大常见接法,L孔接火线,L1孔接灯线1,L2孔接灯线2,这样就是双键控制两个灯。 3、三键改两键安装 因为小米的开关并没有三键,最多只有两键,所以之前留了多键现在想改成小米开关的就只能,让其中两个灯被一个开关控制。接线方式为L孔插入火线,L1孔接入一根灯线,L2孔接入两根灯线。(注意接入两根灯线的灯开灯后可能会有轻微的电流声,忘记拍图片了不好打开。。。) 4、原双控改智能插座 如果原来是双控开关那么,之前的线盒中除了火线和灯线以外会多出一根双控线来。目前我发现有两种办法解决。 
一是其中一边开关不要拆除但废弃不用,智能开关处把蓝色双控线缠住,这样当未拆除的开关处于某一状态下就可以相当于灯线和火线相连,这样智能开关就可以正常使用。(废弃开关平时不要去碰它仅仅美观作用,我的主卧就是这样) 
二是把把废弃的一端照常打开,把蓝色双控线单独缠住,然后把灯线和火线缠绕到一起,最后再把废弃开关装回,这样做的好处是废弃开关碰不碰都不影响新开关使用,坏处就是麻烦些还需要卸下来接线然后装回。(我次卧就是这样的) 5、原双控双开改其中一个智能插座 
把两根火线都一起接到L孔,然后其中一根灯线接到L1孔,另一根灯线接到L2孔,同时把双控线给缠住(这里要注意很多电工不规范双控线和灯线用了一个颜色的线所以要试试别接错了)。 五、总结1、安装可能面临的几种情况,我这里基本都罗列了出来对自己后期需要更换智能插座应该有较大帮助。 2、关于开关灵活使用的几点我会在文章最后列出来,有需要的可以收藏看看。 叁、预警智能化:1、温湿度传感器
米家的温湿度传感器目前我知道的有三种米家温湿度传感器49元,只有最基础的温度湿度感应功能;米家蓝牙温湿度计69元,贵了20元多了一个显示功能;最后就是Aqara温湿度传感器79元,贵了30元多了一个检测气压的功能。 这三款设备都可以联动米家空调伴侣,但是我家是风管机,所以就是仅仅作为检测使用。 
2、水浸传感器
可以检测溢水的传感器,目前我装在厨房的水槽下边,因为我的水槽下边接了比较多的管子,如垃圾处理器、洗碗机后期还会装净水,所以有个这个可以放心点,有种玩法是联动墙壁插座或者开关后控制电磁水阀,感觉不错有没有了解电磁水阀的可以评论下我打算试试。 3、摄像头:这款摄像头既是网关,又是摄像头所以整体来说价格还是蛮合适的,目前我家就在使用这款摄像头当网关使用。除此之外这款摄像头有三个功能我感觉比较使用。 
1、实时可以观察家中的情况并同时检测移动,可以在出差时设置上检测移动报警。左边是监控画面,右边是移动预警,可以在发生移动时把消息推送手机。 
2、延时摄影,每天晚上会把一天的视频延时摄影为15秒回传到手机上,可以让你很快的看一遍家中的情况,个人感觉这个功能很好,每天晚上都会看一遍反正不耽误时间而且有安全感。 
3、报警功能,基本网关都会有这个功能,主要用于长期出差,移动监测报警有可能被光线影响,但是如果设计为人体传感器报警准确度就十分的高了,当长期出差时我都会设置上报警以防万一。 
4、底座通过旋转和调整角度,基本可以实现所有角度的调整,也可以倒着装然后在系统内设置就可以。 4、烟雾传感器:139元
小米的智能烟雾报警器,也是一个不错的智能预警设备,但是由于我家里有一个报警器了所以就没有重复购买。 5、门窗传感器:49元
通过门窗传感器,可以感应门窗的开合状态,并且联动灯光的控制或者摄像头的控制。但是因为我打算后期安装米家的指纹锁,这样联动效果更好而且开门亮灯或者关灯的设定感觉只适合单身使用,所以也没安装。 肆、可接入App:米家App:最常用的小米智能电器控制App,可以控制大多数的小米智能电器,可以直接在这个App里看见家中所有的小米智能电器,使用起来也是比较方便的,能一目了然的看见设备目前状态。这里就不赘述了,下一篇打造智能联动再详细写。 
这里就简单说一下想要实现智能联动需要用到的功能,就是这个新建智能功能。使用很简单就是如果产生什么条件,就执行什么条件。这个如果条件和执行条件都是可以同时设计很多的,从而实现联动。 
homekitApp:可以利用网关连入使用,使用但是由于我觉得还是米家App好用就没用,下一篇文章会详细讲讲。 总结:1、单火开关或者零火开关可以联动无线开关,所以可以实现开关布置的双控,利用这点可以节省下很多布线费用。 2、每个布线的开关都可以连接多个无线开关,这样可以把平时很难实现的多控轻松实现。(多控开关特别贵,而且布线也很麻烦,目前还没发现单一开关的对接上线) 3、有线开关可以改为无线开关使用,但是改后有线的功能就失效了,所以如果有的地方需要一个单键和一个无线的时候可以用一个双键来代替,价格便宜还简洁。 4、无线开关的全屋控制依赖于网关,所以会有一定的延迟,这点需要习惯,不要看没关就连续点。 5、灵活结合门窗传感器、人体传感器、指纹锁、智能音响等来实现开门亮灯、起夜夜灯、语音开关灯等各种智能化场景。
|